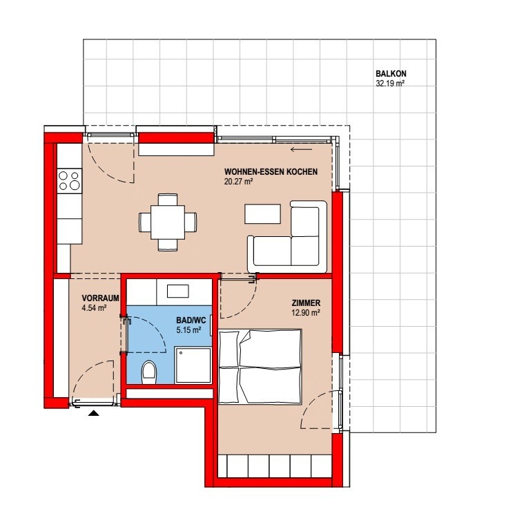
Top 11 - 2 Zimmer - 1. OG - 43 m² - 32 m² Balkon - Nähe UKH
Küche und Bad möbliert
Parkettboden
Balkon
Neubau
Mietbeginn Februar 2026
Wohnfläche € 42,87 m²
Kaution*: € 2.350,00
Mietdauer: Befristung 5 Jahre
Gesamtmiete inkl. BK*: € 698,94 zzgl. HK + Warmw.*: € 83,00
Gesamt:
- Detailinformationen
Schöne 2 Zimmer-Wohnung im 1. OG mit 32 m² Balkon, nahe UKH Graz in der Göstinger Straße 14!
Highlights:
- Attraktives Wohnhaus in Top-Lage
- 1A-Raumeinteilung
- Sehr schöner Wohn-, Essbereich mit integrierter Küche
- Tischlerküche mit Markengeräten inkl. Geschirrspüler + Mikrowelle
- 1 Schlafzimmer
- Balkon ist von beiden Räumen begehbar
- Geräumiger Vorraum
- Parkettboden
- Fußbodenheizung
- Elektrische Raffstores
- Großes Bad mit Waschtischverbau und Spiegelschrank
- Bodenebene Echtglas-Dusche
- Kellerabteil
Die Göstinger Straße ist eine beliebte Wohnstraße in Eggenberg, angrenzend zum UKH Graz, LKH West und KH Elisabethinen und nah zu Schloss Eggenberg, der Auster und vielen Naherholungsgebieten.
Die Straßenbahnlinie 1 ist rasch erreicht und bringt Sie in kurzer Zeit über Eggenberg, an der FH vorbei in die Grazer Innenstadt und direkt bis Mariatrost. Die Buslinie 65 fährt nach Gösting und in die Gegenrichtung bis zum Bahnhof Graz- Puntigam.
Sie schätzen gehobene Ausstattung, den Flair einer kleineren Wohnanlage und die Nähe zur Natur, lassen den Abend gerne auf dem Balkon oder bei einem schönen Spaziergang rund um Schloss Eggenberg ausklingen? Dann wird Ihnen diese Wohnung gefallen!
Infos und Besichtigungen:
Mag. Gertrud Hofstätter-Kletzenbauer 0699/15 915 110










