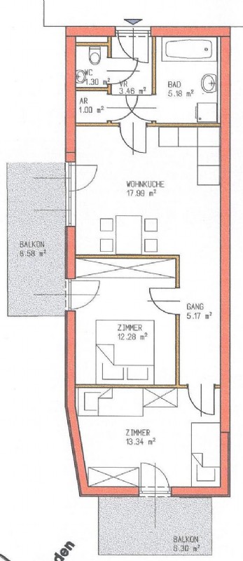
3 Zimmer - 1.OG - Top 9 - ca. 60 m² - jedes Zimmer mit Balkon
Küche und Bad möbliert
Parkettboden
Balkon
Mietbeginn Mai 2026
Wohnfläche 59,71 m²
Kaution*: € 3,000,00
Mietdauer: Befristung 5 Jahre
Gesamtmiete inkl. BK*: € 886,38 zzgl. HK + Warmw.*: € 110,86
Gesamt:
- Detailinformationen
WG-tauglich! Schöne Mietwohnung in sehr guter Lage in St. Peter, 3 Zimmer, jedes Zimmer mit Balkon, Bad/WC getrennt, Abstellraum! Ab Mai 2026!
Highlights:
- Attraktives Wohnhaus in sehr guter Lage
- Perfekte Infrastruktur
- Schöner Wohnbereich mit integrierter Küche und Balkon
- Küche mit Geräten
- 2 Schlafzimmer jeweils mit Zugang zum Balkon
- WG-tauglich
- Parkettboden
- Fernwärme
- Abstellraum
- Bad mit Wanne und Spiegelschrank
- Extra WC
- Kellerabteil
Die Eisteichgasse 1 ist eine beliebte Wohnstraße in sehr guter Lage in St. Peter, mit guter Verkehrsanbindung. Mit der Straßenbahn Linie 6 erreicht man in 13 Minuten die Grazer Innenstadt. Die Linie 6 fährt vorbei an der TU Neue Technik bis zur Smart City in Eggenberg.
Viele Einkaufsmöglichkeiten befinden sich in der Nähe und sind auch gut zu Fuß erreichbar.
Sie schätzen eine durchdachte Raumplanung, eine schön ausgestattete Wohnung in ruhiger Lage und eine sehr gute Infrastruktur? Dann wird Ihnen diese Wohnung gefallen!
Infos und Besichtigungen:
Mag. Gertrud Hofstätter-Kletzenbauer
0699/15 915 110










